プロフィットマート枚方
- インターから近い
好立地 - 広大な駐車場
スペース - 労働人口が豊富
なエリア - 自然災害リスク
の低いエリア
大阪府枚方市大字穂谷2128番9
第二京阪道路「枚方学研」ICより約4.4km
第二京阪道路「枚方東」ICより約4.1km
京奈和自動車道「田辺西」ICより約3.5km
| エリア | 地下1階 |
|---|---|
| 倉庫 | 1,382.72坪 |
| バース | 383.33坪 |
| 合計 | 1,766.05坪 |
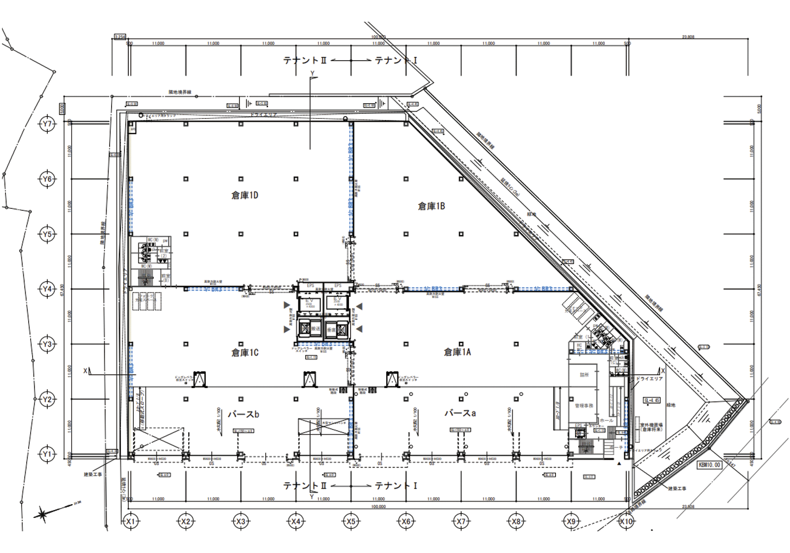
| エリア | 1階 |
|---|---|
| 倉庫 | 1,751.60坪 |
| 合計 | 1,751.60坪 |
| エリア | 2階 |
|---|---|
| 倉庫 | 1,418.85坪 |
| 合計 | 1,418.85坪 |
| エリア | 3階 |
|---|---|
| 倉庫 | 745.22坪 |
| 事務所 | 333.01坪 |
| 合計 | 1,078.23坪 |
全区画で募集をしております
| 所在地 | 大阪府枚方市大字穂谷2128番9 |
|---|---|
| アクセス | 第二京阪道路「枚方学研」ICより約4.4km 第二京阪道路「枚方東」ICより約4.1km 京奈和自動車道「田辺西」ICより約3.5km |
| 用途地域 | 市街化調整区域 |
| 敷地面積 | 21,511.65m² (約6,507.28坪) |
| 規模構造 | 鉄筋コンクリート・S造(耐震構造) 4階建て(地下1階含む) |
| 延床面積 | 19,898.04m² (約6,019.16坪) |
| 竣工 | 2024年10月末 |
| 賃料 | 応相談 |
|---|---|
| 敷金 | 月間賃料の3カ月相当額 |
| 契約形態 | 定期借家契約5年~10年 |
| フリーレント | 応相談 |
| 業務請負契約 | 可 |
| 床形式 | 高床式(1ⅿ) |
|---|---|
| 床荷重 | 全階:1.5t/m² |
| 天井高 | 地下1階〜2階:5.65m 3階:2.57∼3.58m |
| 荷物用EV | 3.5t 2基 |
| 垂直搬送機 | 1.5t 2基 |
| ドックレベラー | 3基 |
| エリア | 地下1階 | 1階 | 2階 | 3階 | 計 |
|---|---|---|---|---|---|
| 倉庫 | 1,382.72坪 | 1,751.60坪 | 1,418.85坪 | 745.22坪 | 5,298.39坪 |
| 事務所 | 0.00坪 | 0.00坪 | 0.00坪 | 333,01坪 | 333,01坪 |
| バース | 383.33坪 | 0.00坪 | 0.00坪 | 0.00坪 | 383.33坪 |
| 共有部 | 0.00坪 | 0.00坪 | 0.00坪 | 0.00坪 | 0.00坪 |
| 合計 | 1,766.05坪 | 1,751.60坪 | 1,418.85坪 | 1,078.23坪 | 6,014.73坪 |