プロフィットマート高槻Ⅱ
- 大阪・京都の中間立地
によるアクセス性 - 労働人口が豊富
なエリア - 豊富な
駐車場スペース - 様々なニーズ
に合わせご提案可能
大阪府高槻市辻子3丁目25-1
阪神高速守口線「守口」ICより約9.0km
名神高速「茨木」ICより約9.9km
阪急京都線「高槻駅」から徒歩20分
| エリア | 1階 |
|---|---|
| 倉庫 | 1,160.43坪 |
| トラックバース | 351.47坪 |
| テナント専有部 | 67.62坪 |
| 合計 | 1,579.53坪 |
| エリア | 2階 |
|---|---|
| 倉庫 | 1,365.11坪 |
| 事務所 | 144.24坪 |
| テナント専有部 | 70.18坪 |
| 合計 | 1,579.53坪 |
| エリア | 3階 |
|---|---|
| 倉庫 | 1,514.97坪 |
| テナント専有部 | 64.56坪 |
| 合計 | 1,579.53坪 |
| エリア | 4階 |
|---|---|
| 倉庫 | 1,516.02坪 |
| テナント専有部 | 63.51坪 |
| 合計 | 1,579.53坪 |
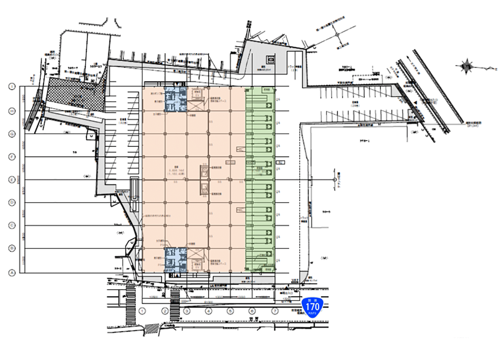
上記平面図をご確認ください。
| 所在地 | 大阪府高槻市辻子3丁目 |
|---|---|
| アクセス | 阪神高速守口線「守口」ICより約9.0km 名神高速「茨木」ICより約9.9km 阪急京都線「高槻駅」から徒歩20分 |
| 用途地域 | 準工業地域 建蔽率/容積率 60%/200% |
| 敷地面積 | 10,203.03m² (約3,086.42坪) |
| 規模構造 | 鉄筋コンクリート・鉄骨造(耐震構造( 地上4階建て |
| 延床面積 | 20,886.40m² (約6,318.14坪) |
| 竣工 | 2021年4月末 |
| 賃料 | 倉庫・バース/応相談 事務所/応相談 |
|---|---|
| 敷金 | 応相談 |
| 契約形態 | 定期借家契約5年以上 |
| その他 | 2分割の場合は使用坪数に応じて条件応相談 寄託でのご相談可 |
| 床形式 | 高床式(1ⅿ) |
|---|---|
| 床荷重 | 1階・2階・3階・4階:1.5t/m² |
| 天井高 | 5.5m |
| 乗用EV | 1.0t 2基 |
| 荷物用EV | 2基 |
| 垂直搬送機 | 1.5t 2基 |
| ドックレベラー | 2基 |
| エリア | 1階 | 2階 | 3階 | 4階 | 計 |
|---|---|---|---|---|---|
| 倉庫 | 1,160.43坪 | 1,365.11坪 | 1,514.97坪 | 1,516.02坪 | 5,556.53坪 |
| 事務所 | 0.00坪 | 144.24坪 | 0.00坪 | 0.00坪 | 144.24坪 |
| バース | 351.48坪 | 0.00坪 | 0.00坪 | 0.00坪 | 351.48坪 |
| 共有部 | 67.62坪 | 70.18坪 | 64.56坪 | 63.51坪 | 265.87坪 |
| 合計 | 1,579.53坪 | 1,579.53坪 | 1,579.53坪 | 1,579.53坪 | 6,318.12坪 |